Access Statement For Woodland Cottage, Cartmel.
Introduction
Woodland
Cottage is a single storey detached building in its own land. We have tried to provide as much information
as possible in this statement, if you have any queries please do call. We look forward to welcoming you.
Contact
John & Biddy Hibbert
Address: Broughton
Bank, Cartmel, Cumbria,
LA11 7SH
Telephone: 015395 36411
Email: relax@cartmelholidaycottage.com
Website: www.
cartmelholidaycottage.com
Hours of operation: Phones – generally 9.00-5.30pm
Please let us know if you need other local information.
Pre-Arrival
o Bookings / enquiries can
be made via email or phone
o Payment for bookings can
be made by cash, cheque or BACS
o The nearest bus stop is in
Cartmel just over 1 mile from the cottage.
o The nearest train station
is in Grange-over-Sands 4 miles away; taxis are accessible at the station, and numbers are
available in the telephone book in the cottage.
Facilities
o Shops, pubs and restaurants are available in
Cartmel, one mile away.
o Banks, shops and a library are available in
Grange-over-Sands, and a Natwest bank van
visits Cartmel on Mondays.
o Worship in the
neighbourhood: Church of England
services are available at St Peter’s, Field Broughton and the Priory, Cartmel.
Other denominations are available in Grange. There is a Bhuddist Monastery at Ulverston.
Arrival & Car Parking Facilities
o There is a car parking
area for up to three cars to the side of the cottage. It is level and reasonably flat.
o Street parking is possible
but not encouraged as the road outside is quite narrow.
o Parking is 8 yards away
from the rear (nearest) entrance.
o The back entrance is
reached through the carpark via a path 2 feet wide, with 2 steps 7 inches high.
o Wheeled access to the back
door may be made over the lawn which slopes gently down to the patio by the
back door. This route would be about 25
yards from the parking area.
o The door at the back has
one step at the door lintel 9 inches high, and the door opening is 31 inches
wide. The door is hinged on the right, and there is plenty
of room to turn left and on into the main room.
o The front path runs
directly from the road and has one step 9 inches high.
Garden
o Guests at Woodland Cottage
have the use of the large garden, and should take care with precipitous
rocks etc.
o There is a low wall
surrounding the garden. This is not
sufficient to keep dogs in,
and it is recommended that all animals are well supervised as all
surrounding land is farmed, often with
sheep grazing there.
o Gates are provided between
the parking area and the road.
o A shed is provided. It contains fire lighting materials and some
garden implements.
o Washing lines can be
strung from the telegraph pole to the staging on the gable end of the house.
Woodland Cottage - General
o Floors are laminated wood, walls are light
coloured.
o The living room is open
plan combining kitchen,
lounge and dining areas.
o Internal doors are 30
inches wide except where indicated.
Smallest internal door is to the bathroom at 27¾ inches wide.
o Mains powered smoke alarm
with back up battery is situated in the living room.
o Furniture apart from
fitted kitchen units is moveable and all is non feather.
Front door and porch
o Door opening 31 inches.
o Further step to living room
9 inches.
o Coat rack.
Utility room and back door
o There is a standard size combined
washer dryer, which is front loading, provided in the utility room.
o Drying creel is provided
above worktop.
o Microwave oven sits on the
worktop.
o Freezer provided under worktop.
o Wood is stored in the
utility room.
o Cleaning materials are
stored in a fitted cupboard.
o Recharging torch is
mounted beside the cupboard door.
o Coat rack.
Lobby to Bedroom 1 and Bathroom
o 28” door opening.
o Full length mirror behind
door.
Bedrooms – general
o Sheets, duvet covers and
pillow cases are poly-cotton
o Non Feather duvets and
pillows provided.
o Beds are movable if more
space is required to one side
Bedroom 1
o
King size mattress is 6'3" by 5'. The overall size is 7'2" by 5'7".
o
Bed height 28 inches from floor to top of mattress. There is a plastic footstool in the cottage if this is too high.
o
Transfer space available by bed is 46 x 49 inches. The bed could be pushed further over to make this space wider than 46 inches.
Bedroom 2
o Door 31 inches wide
o
Twin bed mattresses are 3' by 6'3". Overall size is 7' by 3'1".
o Bed height 22 inches from
floor to top of mattress.
o
Transfer space available by bed is 36 x 46 inches, although one of the beds can be pushed over to make the space wider (more than 36 inches).
Bathroom & WC
o Door 27¾ inches wide.
o Bath with flexible shower over .
o
o Free space in bathroom
(free of doors and furniture) is 35 by 41 inches.
o Toilet seat height is 16¾
inches.
o Space to right of toilet
is 8 inches, to the left 9½ inches.
o Reasonable colour contrast
between floor, walls and furniture.
Kitchen
o Open plan Kitchen with
Dining room
o Round dining table, 24½
inches floor to lowest point under table top, 42 inches in diameter and the table
top is 29 inches high.
o 4 chairs with rush seats
18½ inches high.
o One double seat sofa and
one triple seat provided both with arms.
o TV provided with remote
control (also available are DVD, stereo with CD and radio). TV reception is via free view sattelite.
o Worktop height 3 feet.
o Wall units contain crockery, fan over hob, tea,
coffee and miscellaneous kitchen equipment.
o Floor units contain dishwasher, fridge, oven,
saucepans and miscellaneous kitchen equipment.
o Oven door is drop down,
height of lowest shelf 14 inches
o Sink is 3 feet high with
cupboards underneath
o Hob is 3 feet high
electric powered
o Fridge provided under
worktop
o Flooring is laminate
wooden surface with one rug in sitting area
o Evenly lit kitchen with
spotlights above work surfaces
o Reasonable colour contrast
between floor, cupboards and other surfaces
o Mains powered fire alarm
with battery back up mounted on ceiling.
Additional
o
o For up-to-date local
information, see
the local papers, Western evening news
and Westmoreland Gazette.
o Unpredictable mobile phone
reception
o Please do not smoke
indoors at Woodland Cottage
o Pets and service dogs are
welcome at a small charge
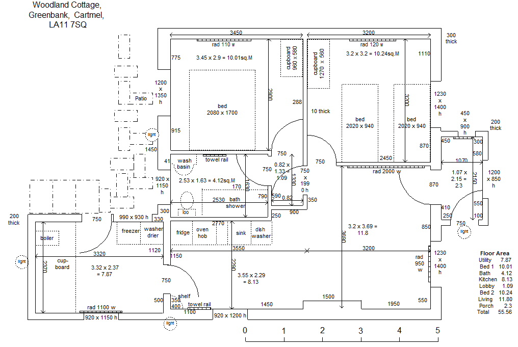
Floor plan

We welcome your feedback to help us improve
our service to our guests. If you have
any comments please phone or email us.
Page created 25 November, 2015
